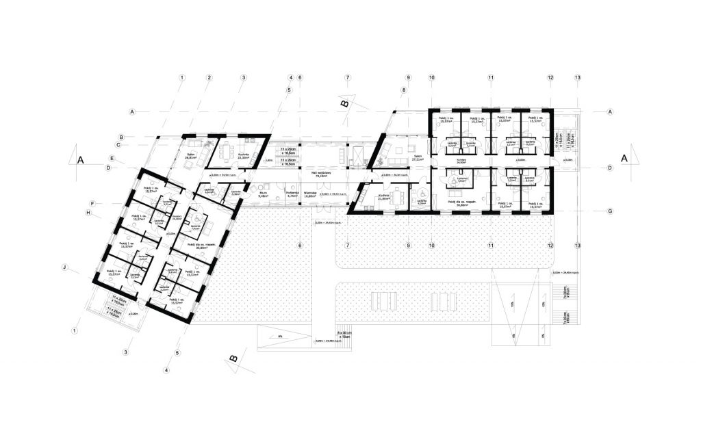
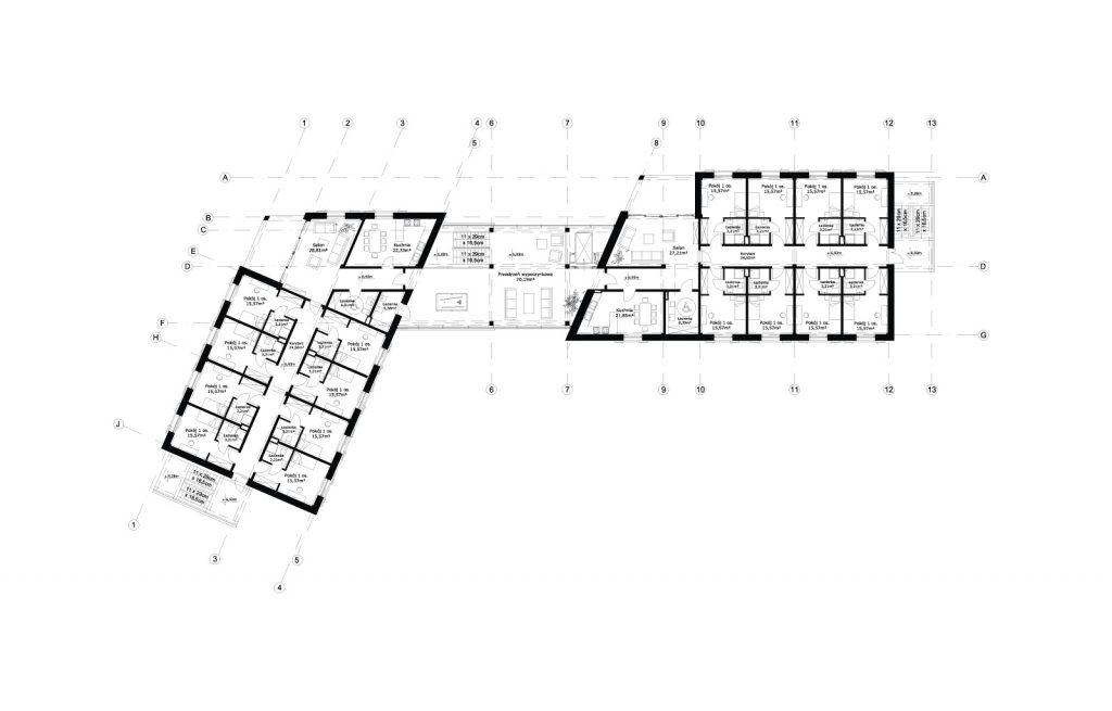
Als Abschlussarbeit meines Bachelorstudiums plante ich ein Studentenwohnheim mit 46 Einzelpersonenzimmern inklusive eigenem Bad, die zu Einheiten von 8 Zimmern zusammengefasst wurden. Jede Einheit enthielt ein Wohn- und Kochbereich sowie ein Gästebad.
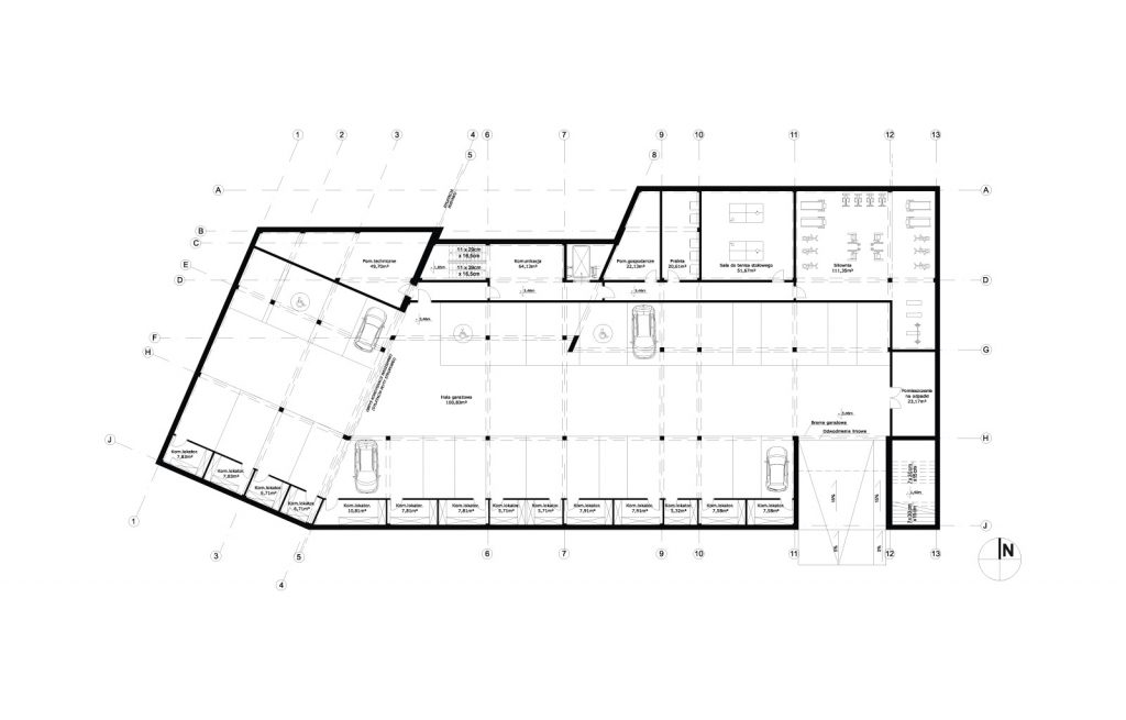
Der Studentenkomplex besteht aus zwei Wohnungsblöcken, die mit einer verglasten Verkehrsfläche verbunden sind. Das bestehende Grundstücksgefälle wurde mit einer Tiefgarage ausgeglichen. Dadurch entsteht vor dem Gebäude eine abgegrenzte Gemeinschaftsfläche.
Der Entwurf wurde unter Berücksichtigung aller Details geplant, d.h. Grundriss und Schnitt wurden so detailliert wie in einer Ausführungsplanung umgesetzt. Die Konstruktionselemente wurden mehrmals mit einem Statiker besprochen. Alle Stärken und Dimensionen wurden als Teil der Aufgabe von mir explizit berechnet.
Als besonderes Wiedererkennungsmerkmal wurden schiebbare Holz-Lamellen-Türen (Jalousien) eingeplant. Gemäßg den Brandschutzanforderungen wurden die Fluchtwege über zwei außen liegende Treppenhäuser geplant, die gleichzeitig als alternativer Zugang zu den Zimmern dienen.










