Im Fach „Restaurierungen und Denkmalschutz“ wurde eine Studie inklusive Aufmaß einer alten Bausubstanz mit anschließender Umplanung durchgeführt.
Unsere Wahl fiel auf ein verwahrlostes Gebäude im Zentrum des bekannten Ostsee-Kurortes Sopot. Die prachtvolle Villa wurde in der Wende des 19. und 20. Jahrhunderts erstellt. Die auffällige Pilaster und Ornamentkunst an der Frontfassade ist einmalig, aber leider technisch in einem sehr schlechten Zustand.
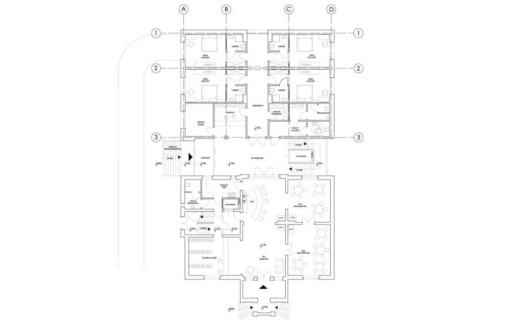
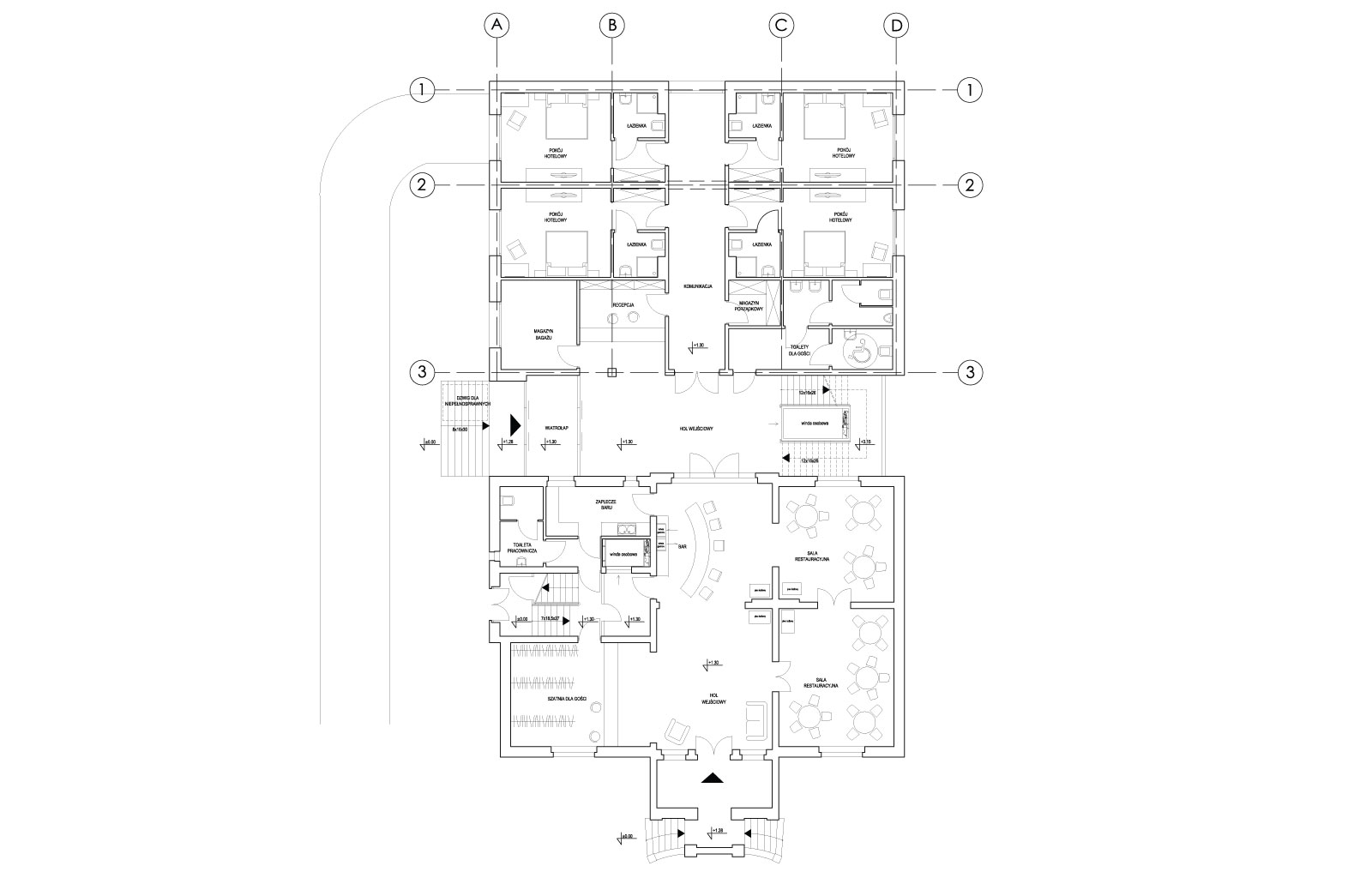
Unsere Aufgabe war es, eine neue Nutzung für das Gebäude zu finden. Wir haben das bestehende Gebäude in ein Restaurant umgewandelt und um eine Hotelfläche erweitert. Das zweite Gebäude übernimmt die Proportionen des bestehenden und wurde mit einer verglasten Verkehrsfläche verbunden.
Von der Fassade des Anbaus entstanden zwei Varianten. Die erste Variante übernimmt die bestehende dekorative Fassade, während die zweite Variante sie auf einer modernen Art und Weise adaptiert.








