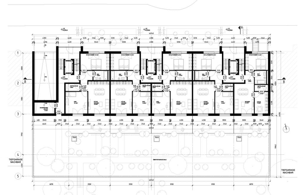
Genehmigungsplanung eines Mehrfamilienhauses am Freiheitsweg in Berlin Reinickendorf. Im Untergeschoss wurde eine Tiefgarage mit 23 Stellplätzen, einem Fahrradkeller und Abstellräumen nach den Anforderungen der Stadt Berlin umgesetzt. Die insgesamt 24 Wohneinheiten mit jeweils drei Zimmern sind von drei Treppenhäusern zugänglich. Es wurden zwei Variationen der Fassade entwickelt: Die eine mit weißem Putz, die andere mit einer schwarzen Verkleidung und Holzelementen.
